事業内容 新規事業

REDO by KEYMAN

旧耐震建築再生運用

宿泊施設

自社主導の「築古物件再生事業」として初めて着手したプロジェクトで、
大阪市を拠点にしている高級貸し切り宿「今昔荘」ブランドと
タッグを組んだプロジェクト。
大阪市港区にある4階建て築古物件をキーマンが取得し耐震診断を行い、
改修工事を施して宿泊施設として再生。
このプロジェクトは事業再構築補助金に採択されました。
大人数でも宿泊できる広い客室、デザイン性が高くかつ日本文化と
大阪の雰囲気を感じられる落ち着いた内装・調度品を揃えています。
2つのコンセプトルームがある「今昔荘 天保山 大阪ベイ」として、
2022年5月オープン。

  • 構造

    鉄骨造

  • 階数

    地上4階

  • 敷地面積

    139.51㎡

  • 建築面積

    99.01㎡

  • 延床面積

    363.19㎡

〒552-0021 大阪府大阪市港区築港3丁目10-11 RE・do TEMPOZAN 2/3/4階
大阪メトロ「大阪港駅」から徒歩約5分

プロジェクトの詳細

「今昔荘 天保山 大阪ベイ」は2つのコンセプトルームがあり、
3、4階は観覧車ビューを楽しめる露天風呂付客室「高灯籠(たかどうろう)」、
2階はひのき風呂プロジェクションマッピングを備えた半露天風呂付客室「生洲(いけす)」となっている。
「高灯籠」は露天風呂から天保山大観覧車が望むことができ、それを江戸時代の天保山の船の目印であった高灯籠にみたてた「新旧ランドマークの融合」というコンセプトでデザインされており、ビルの3階と4階部分を改装したメゾネットタイプで、2フロア合わせて165㎡の広々として客室に、5つのベッドルームが備わっている。
「生洲」は世界最大級の水族館「海遊館」があるこの地を、江戸時代の水族館であった生洲にみたて、それを浴槽へのプロジェクションマッピングで表現するという「今と昔の水族館体験」というコンセプトでデザインされており、ビルの2階部分を改装した90㎡の客室に3つのベッドルームがあり、ひのき風呂に投影されたプロジェクションマッピングを楽しめる。
両室とも、大迫力のホームシアターや大画面でのNintendo Switchが備わったリビング・ダイニングがあり、家族や友人のグループが他のゲストと接することなく、大人数で自分たちの時間を最大限に楽しめる工夫がされた、非接触型の一棟貸切宿泊施設に仕上げた。

パースの箇所をクリックすると該当写真が表示されます

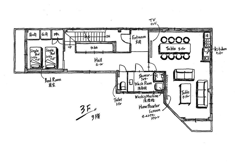
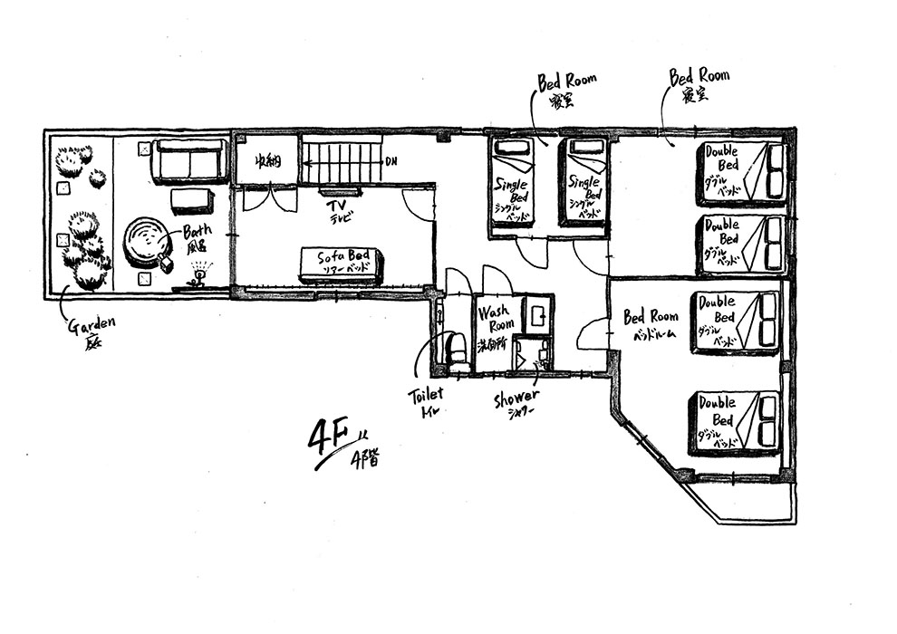
3・4階 コンセプトルーム
「高灯籠(たかどうろう)」

専用駐車場付き 定員15名

メゾネットタイプで、2フロア合わせて
165㎡の広々とした客室
寝室5室/リビング・キッチン/トイレ2室/浴室2室(屋外露天風呂、シャワーブース)

公式サイト

2階 コンセプトルーム
「生洲(いけす)」

専用駐車場付き 定員8名

ひのき風呂プロジェクションマッピングを備えた1フロア90㎡の半露天風呂付客室
寝室3室/リビング・キッチン/トイレ2室/浴室1室(半露天風呂)

公式サイト
パースの箇所をクリックすると該当写真が表示されます

プロジェクトチーム

施設所有・事業主体・耐震診断 株式会社キーマン
運営支援 株式会社ファンバウンド
設計監理・内装工事・設備工事 9株式会社

プロジェクトの歩み

  • 2020年2月 
    天保山に位置する築古物件を視察

    高級貸切宿「今昔荘」を運営しているファンバウンドと意見交換開始。

  • 2020年3月 
    自社初の宿泊事業プロジェクト思案開始
  • 2020年4月 
    天保山のビルを取得し、
    ビル全体の耐震状況や構造を確認

    しかし、コロナの蔓延により思うようにプロジェクトが進められず、中断。

  • 2021年9月 
    コロナ禍からの脱却を図るため、
    事業再構築補助金を申請し、採択
  • 2021年9月 
    プロジェクトチーム発足

    高級貸切宿「今昔荘」を運営しているファンバウンド、空き家・空きビル・遊休地の再生リノベーションを行う9(ナイン)とプロジェクトチームを組み、本格的にコンセプト案の検討がスタート。

  • 2021年11月 
    リノベーション工事開始
  • 2022年5月 
    竣工
  • 2022年5月
    オープン

    コロナ禍でのプロジェクトの中断を経験し、ついにキーマン初の宿泊施設がオープン。

今昔荘 天保山 大阪ベイのご予約はこちら

https://konjakuso.airhost.co/ja/houses/249598

本ページのプロジェクト情報は、2022年5月時点のものです

メディア情報

テレビ

読売テレビ
関西情報ネット ten

2022年9月20日放送分
地価上昇のニュースにて、コロナ禍での施設出店を
取り上げられました。

動画

Abema TV
セカンドチャンス
ウエディング

2022年8月
撮影で室内が使用されました。

Follow us on...

Stay tuned to us on Instagram and X.